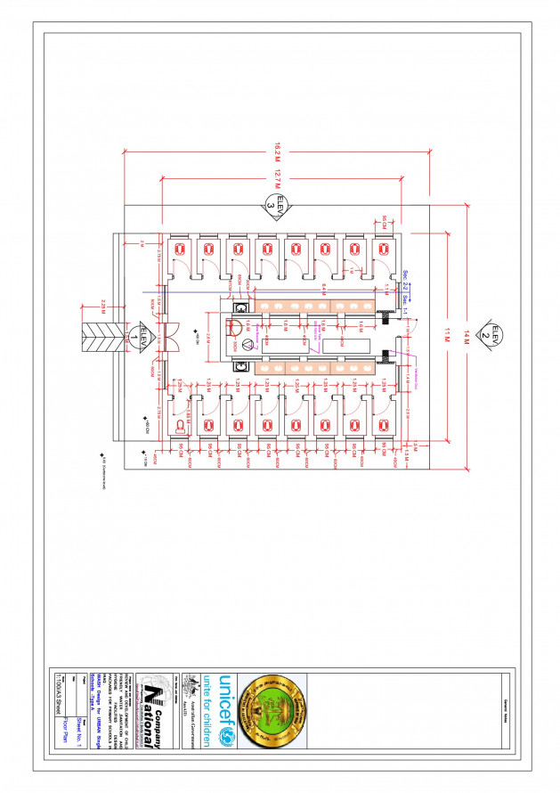
Review and Development of Child Friendly Water, Sanitation and Hygiene Facilities Design Packages for Primary Schools in Iraq: WASH design for urban single schools type A

Title:

Review and Development of Child Friendly Water, Sanitation and Hygiene Facilities Design Packages for Primary Schools in Iraq: WASH design for urban single schools type A

Author:

National Company for Engineering, Consultations and Quality Control Ltd

Date:

01 Jan

Organisation:

National Company for Engineering, Consultations and Quality Control Ltd

Year:

2012

Tags:

Sanitation, Water, Technology, Tools, Iraq, English

Citation:

National Company for Engineering, Consultations and Quality Control Ltd, Review of Child Friendly WASH Facilities Design Packages for Primary Schools in Iraq, UNICEF, 2012

Summary (100 words or less):

From National Company for Engineering, Consultations and Quality Control Ltd, this set of technical plans makes up the review and development of child-friendly WASH facilities design packages. They are intended for primary schools in Iraq which are urban and single-sex. 

OR

Copy Link Close