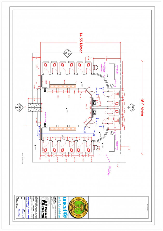
Review and Development of Child Friendly Water, Sanitation and Hygiene Facilities Design Packages for Primary Schools in Iraq: WASH design for urban mixed schools type B

Title:

Review and Development of Child Friendly Water, Sanitation and Hygiene Facilities Design Packages for Primary Schools in Iraq: WASH design for urban mixed schools type B

Author:

National Company for Engineering, Consultations and Quality Control Ltd

Date:

01 Jan

Organisation:

National Company for Engineering, Consultations and Quality Control Ltd

Year:

2012

Tags:

Sanitation, Water, Technology, Tools, Iraq, English

Citation:

National Company for Engineering, Consultations and Quality Control Ltd, Review of Child Friendly WASHFacilities Design Packages for Primary Schools in Iraq: type B, UNICEF, 2012

Summary (100 words or less):

Showing measurements, layouts and detailed plans for the construction of WASH facilities for urban, mixed gender schools - there are 17 pages for technical drawings in this document. The set includes several designs dedicated to the plumbing of the facilities.

OR

Copy Link Close